top

您的当前位置为:

首页 >  产品展示 >  稀油润滑部件 >  GLCQ、GLLQ型列管式冷却器
GLCQ、GLLQ型列管式冷却器
一、概述
  列管式油冷却器适用于冶金、矿山、水泥、电力、轻工、食品、化工、造纸等工业部门的稀油润滑系统和液压系统中用来冷却系统中的润滑油、液压油。
GLCQ、GLLQ型列管式冷却器是在JB/ZQ4004-86标准的基础上改进设计成JB/T7356-94标准的;产品适用于冶金、矿山、轻工、电力、化工等工业部门的稀油润滑装置,液压站和油压设备中,将热工作油冷却到要求的温度;冷却器的工作温度≤100℃,工作压力≤1.6MPa,一般工作压力≤1MPa;本产品体积小,重量轻、冷却效果好,便于维护检修;GLCQ 型的换热管采用紫铜翅片管,热交换系数>300kcal/m2·h·℃;GLLQ型采用裸(光)管,热交换系数>200kcal/m2·h·℃。
二、型号含义
 
三、技术参数
型号
公称
压力
MPa
公称冷却面积m2
热交换器性能
介质粘
度等级
进油
温度
进水
温度
油温
压力损失
MPa
油流量
与水流
量之比
热交换系数
K
kcal/m2.h.℃
油侧
水侧
GLCQ1
0.63
0.4
0.6
0.8
1
1.2
-
-
-
≤N100
55
±1
≤30
≥8
≤0.1
≤0.05
1:1
>300
GLCQ2
1.3
1.7
2.1
2.6
3
3.6
-
-
GLCQ3
1
4
5
6
7
8
9
10
11
GLCQ4
13
15
17
19
21
23
25
27
GLCQ5
1.6
30
34
37
41
44
47
50
54
GLCQ6
55
60
65
70
75
80
85
90
GLCQ3
0.63
4
5
6
7
-
-
-
-
≤N460
50
±1
1:1.5
>200
GLCQ4
12
16
20
24
28
-
-
-
GLCQ5
35
40
45
50
60
-
-
-
GLCQ6
1
80
100
120
-
-
-
-
-
GLCQ7
160
200
-
-
-
-
-
-
  热交换器性能是指油冷却器在表中规定的工况条件下测得的K值。
四、外形尺寸
GLCQ 型冷却器外形图
GLCQ 型冷却器外形尺寸
型号
L
C
L1
H1
H2
D1
D2
X1
C2
B
L2
L3
t
n-d3
d1
d2
重量
kg
GLCQ1-0.4/*
GLCQ1-0.6/*
GLCQ1-0.8/*
GLCQ1-1.0/*
GLCQ1-1.2/*
370
540
660
810
940
240
405
532
665
805
67
60
68
78
92
52
102
132
115
145
310
435
570
715
2
4-Φ11
G1
G3/4
8
10
12
13
15
GLCQ2-1.3/*
GLCQ2-1.7/*
GLCQ2-2.1/*
GLCQ2-2.6/*
GLCQ2-2.5/*
560
690
820
960
1110
1270
375
500
635
775
925
1085
98
85
93
120
137
78
145
175
172
225
350
485
630
780
935
2
4-Φ11
G1
G1
19
21
25
29
32
36
GLCQ3-4.0/*
GLCQ3-5.0/*
GLCQ3-6.0/*
GLCQ3-7.0/*
840
990
1140
1310
570
720
870
1040
152
125
158
168
238
110
170
210
245
380
530
680
850
10
4-Φ15
G11/2
G11/4
74
77
85
90
GLCQ3-8.0/*
GLCQ3-9.0/*
GLCQ3-10.0/*
GLCQ3-11.0/*
1470
1630
1800
1980
1200
1360
1530
1710
152
125
158
168
238
110
170
210
245
1010
1170
1340
1520
10
4-Φ15
G2
G11/2
96
105
110
118
GLCQ4-13/*
GLCQ4-15/*
1340
1500
985
1145
197
160
208
219
305
140
270
320
318
745
905
12
4-Φ19
G2B
G2
152
164
GLCQ4-17/*
GLCQ4-19/*
GLCQ4-21/*
GLCQ4-23/*
GLCQ4-25/*
GLCQ4-27/*
1660
1830
2010
2180
2360
2530
1305
1475
1655
1825
2005
2175
197
160
208
219
305
140
270
320
318
1065
1235
1415
1585
1765
1935
12
4-Φ19
G2
G2
175
188
200
213
225
GLCQ5-30/*
GLCQ5-34/*
GLCQ5-37/*
GLCQ5-41/*
GLCQ5-44/*
GLCQ5-47/*
GLCQ5-51/*
GLCQ5-54/*
1932
2152
2322
2542
2712
2872
3092
3262
1570
1790
1960
2180
2350
2510
2730
2900
202
200
234
273
355
180
280
320
327
1320
1540
1710
1930
2100
2260
2480
2650
12
4-Φ23
G2
G21/2
-
-
-
-
-
-
-
-
GLCQ6-55/*
GLCQ6-60/*
GLCQ6-65/*
GLCQ6-70/*
GLCQ6-75/*
GLCQ6-80/*
GLCQ6-85/*
GLCQ6-90/*
2272
2452
2632
2812
2992
3172
3352
3532
1860
2040
2220
2400
2580
2760
2940
3120
227
230
284
325
410
200
300
390
363
1590
1770
1950
2130
2310
2490
2670
2850
12
4-Φ23
G21/2
G3
-
-
-
-
-
-
-
-
  注:* 标注公称压力值
GLLQ 型冷却器外形图
GLLQ 型冷却器外形尺寸
型号
L
C
L1
H1
H2
D1
D2
C1
C2
B
L2
L3
D3
D4
n-d1
n-d2
n-b×l
DN1
DN2
重量
kg
GLLQ3-4/* *
1165
682
265
190
210
219
310
140
200
290
367
485
100
100
4-
Φ18
4-Φ18
4-20×28
32
32
143
GLLQ3-5/* *
1465
982
785
168
GLLQ3-6/* *
1765
1282
1085
110
40
184
GLLQ3-7/* *
2065
1512
1385
220
GLLQ4-12/* *
1555
860
345
262
262
325
435
200
300
370
497
660
145
145
65
65
319
GLLQ4-16/* *
1960
1365
1065
380
GLLQ4-20/* *
2370
1775
1475
440
GLLQ4-24/* *
2780
2175
350
1885
160
8-
Φ17.5
4-20×30
80
505
GLLQ4-28/* *
3190
2585
2295
566
GLLQ4-35/* *
2480
1692
500
315
313
426
535
235
300
520
700
1232
180
180
8-Φ18
100
100
698
GLLQ4-40/* *
2750
1962
1502
766
GLLQ4-45/* *
3020
2202
515
725
1772
210
817
GLLQ4-50/* *
3290
2472
2042
125
900
GLLQ4-60/* *
3830
3012
2582
1027
GLLQ4-80/* *
3160
2015
700
500
434
616
780
360
750
935
935
1555
295
295
8-
Φ22
8-Φ23
4-25×32
200
200
1617
GLLQ4-100/* *
3760
2615
2155
1890
GLLQ4-120/* *
4360
3215
2755
2163
  1、第一个* 标注公称压力值,第二个* 标注水管程数(四管程标S,双管程不标注)。下表同。
2、法兰连接尺寸按JB/T81《凸面板式平焊钢制管法兰》中PN=1MPa 的规定。
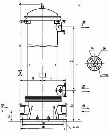
GLLQ 型立式冷却器外形图
GLLQ 型立式冷却器外形尺寸
型号
L
C
L1
C1
H
D1
D2
D3
DN
D4
n-d1
n-d2
重量
kg
GLLQ5-35/* *L
2610
1692
470
150
315
426
640
590
80
160
6-Φ30
4-Φ18
734
GLLQ5-40/* *L
2880
1962
802
GLLQ5-45/* *L
3120
2202
100
180
8-Φ18
853
GLLQ5-50/* *L
3390
2472
936
GLLQ5-60/* *L
3930
3012
1063
GLLQ6-80/* *L
3255
2015
705
235
500
66
1075
1015
125
210
6-Φ40
1670
GLLQ6-100/* *L
3855
2615
1943
GLLQ6-120/* *L
4455
3215
150
240
8-Φ23
2215
GLLQ7-160/* *L
3320
2010
715
602
820
1210
1150
2768
GLLQ7-200/* *L
3970
2660
200
3340
  1、法兰连接尺寸按JB/T81《凸面板式平焊钢制管法兰》中PN=1MPa 的规定。
2、** 标注见前表。

上一个: Y型系列过滤器    下一个: LQ系列列管式冷却器